- Apr 22: EXTENDED to 22 Apr;Closure:30 Mar-22 Apr 2026; 07:30-17:00; Clearway Parking Zone; Hatchs Hill, Steamers Hill and Angarrack Lane (15 hours)
- Apr 24: Mobile Library | Friday 24 Apr 2026 (3 days)
- May 22: Mobile Library | Friday 22 May 2026 (31 days)
- Jun 19: Mobile Library | Friday 19 Jun 2026 (59 days)
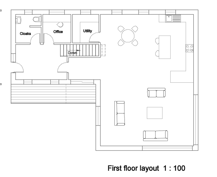
PA20/04787 | Proposed construction of 2 storey dwelling | Angarrack Farm House 12 Grist Lane Angarrack Hayle TR27 5HZ
Submitted by Angarrack.info ... on Mon, 29/06/2020 - 17:04.
Proposed construction of 2 storey dwelling - Angarrack Farm House 12 Grist Lane Angarrack Hayle TR27 5HZ
Ref. No: PA20/04787 | Received date: Thu 11 Jun 2020 | Status: Pending Consideration | Case Type: Planning Application
Properties (2)
- Angarrack Farm House 12 Grist Lane Angarrack Hayle Cornwall TR27 5HZ
- Land Rear Of Angarrack Farm House Grist Lane Angarrack Hayle Cornwall TR27 5HZ
|
| Date Published | Document Type | Measure | Drawing Number | Description | View |
|---|---|---|---|---|---|---|
| 22 Jun 2020 | Plan - Mixed |
|
719/1 | PROPOSED ELEVATION AND FLOOR PLANS, SECTIONS, LOCATION AND BLOCK PLAN |
|
|
| 11 Jun 2020 | Application Form |
|
APPLICATION FORM |
|
||
| 11 Jun 2020 | Statement - Design and Access |
|
DESIGN AND ACCESS STATEMENT |
|
||
| 11 Jun 2020 | Assessment - Flood Risk |
|
FRA FLOOD RISK ASSESSMENT |
|
- Printer-friendly version
- Login or register to post comments
- Permalink
Contributions
- Angarrack Defibrillator Team (25)
- Angarrack Inn (336)
- Angarrack Methodist Chapel (3)
- Carol (15)
- Gail (1)
- GordonG (12)
- Hayle Development Group on Facebook (5)
- Hayle Harbour Authority (4)
- Hayle Town Council (5)
- louise (1)
- Lynne (111)
- Mal (1)
- MattBuckley66 (9)
- Neil (22)
- Neils Garden Care (9)
- Russell (21)
- Secretary - Christmas Lights (141)
- Steve (3)
- webmaster (5122)
Book page
Similar
- PA19/06182 | Overhead lines exemption. - Street Record Steamers Meadow Angarrack Cornwall
- PA19/03725 | Outline application with all matters reserved: Proposed new dwelling - Angarrack Farm House 12 Grist Lane Angarrack
- PA18/00269 | Non-material amendment to approval PA17/06782. Proposed increase in finished ridge height and ground floor level by
- Approved unconditional | PA17/10300 | Application for non-material amendment to application PA17/06782 (Erection of a new dwelli
- Condition 3 discharged | PA17/06782 | Submission of details to discharge condition 3 in relation to decision notice
Similar across site
- PA20/04787 | Proposed construction of 2 storey dwelling | Angarrack Farm House 12 Grist Lane Angarrack Hayle TR27 5HZ
- PA19/06182 | Overhead lines exemption. - Street Record Steamers Meadow Angarrack Cornwall
- PA19/03725 | Outline application with all matters reserved: Proposed new dwelling - Angarrack Farm House 12 Grist Lane Angarrack
- PA18/00269 | Non-material amendment to approval PA17/06782. Proposed increase in finished ridge height and ground floor level by
- Approved unconditional | PA17/10300 | Application for non-material amendment to application PA17/06782 (Erection of a new dwelli






































Recent comments
11 weeks 6 days ago
16 weeks 6 days ago
16 weeks 6 days ago
31 weeks 6 days ago
51 weeks 3 days ago
51 weeks 3 days ago
51 weeks 3 days ago
51 weeks 3 days ago
1 year 21 weeks ago
1 year 35 weeks ago