Village News

Christmas Lights

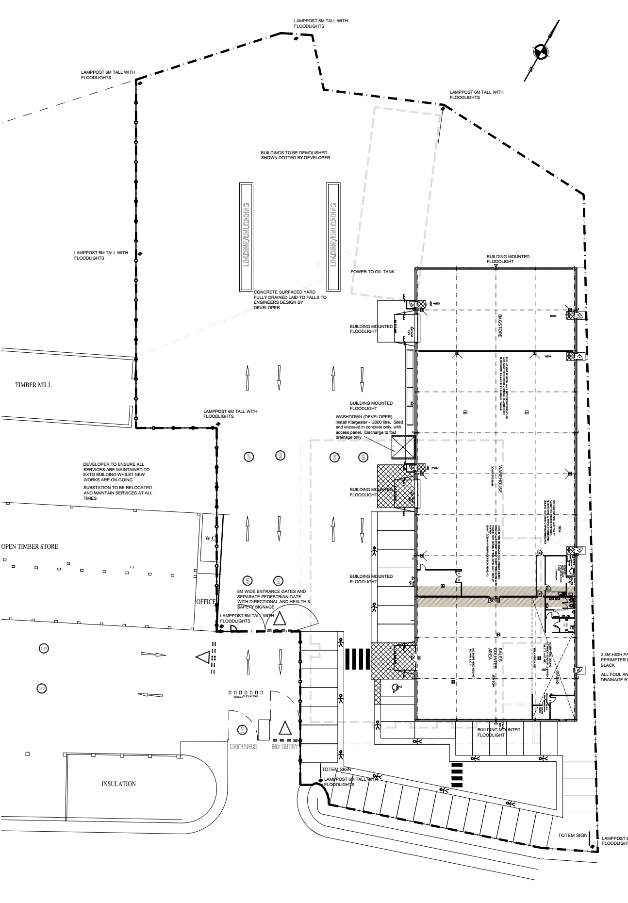
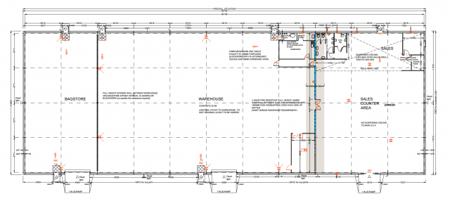
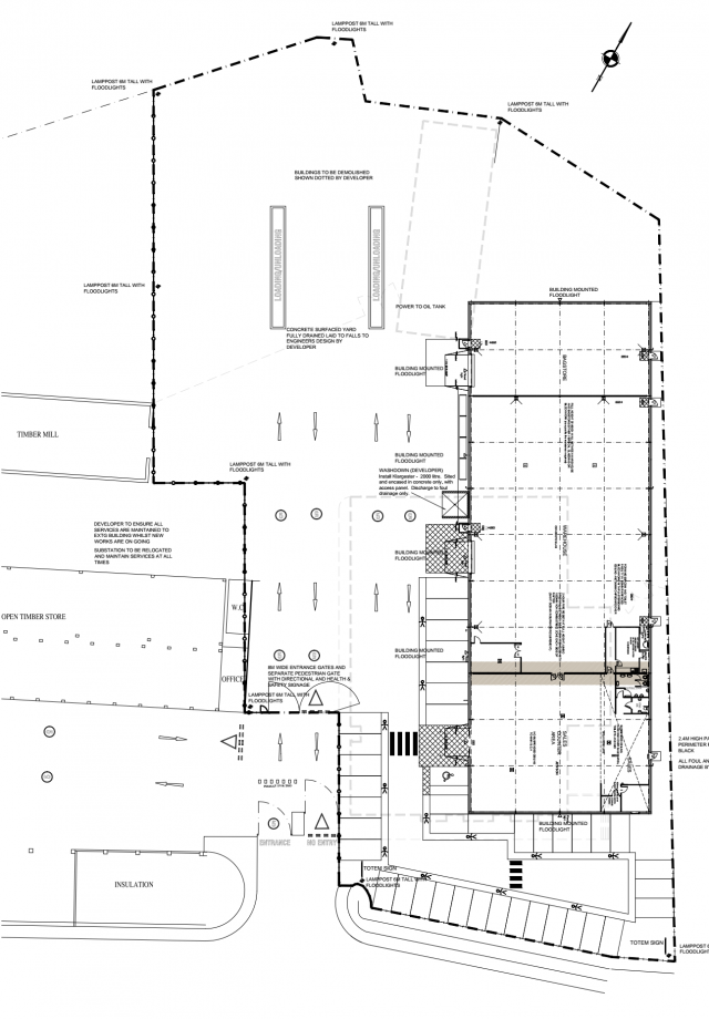
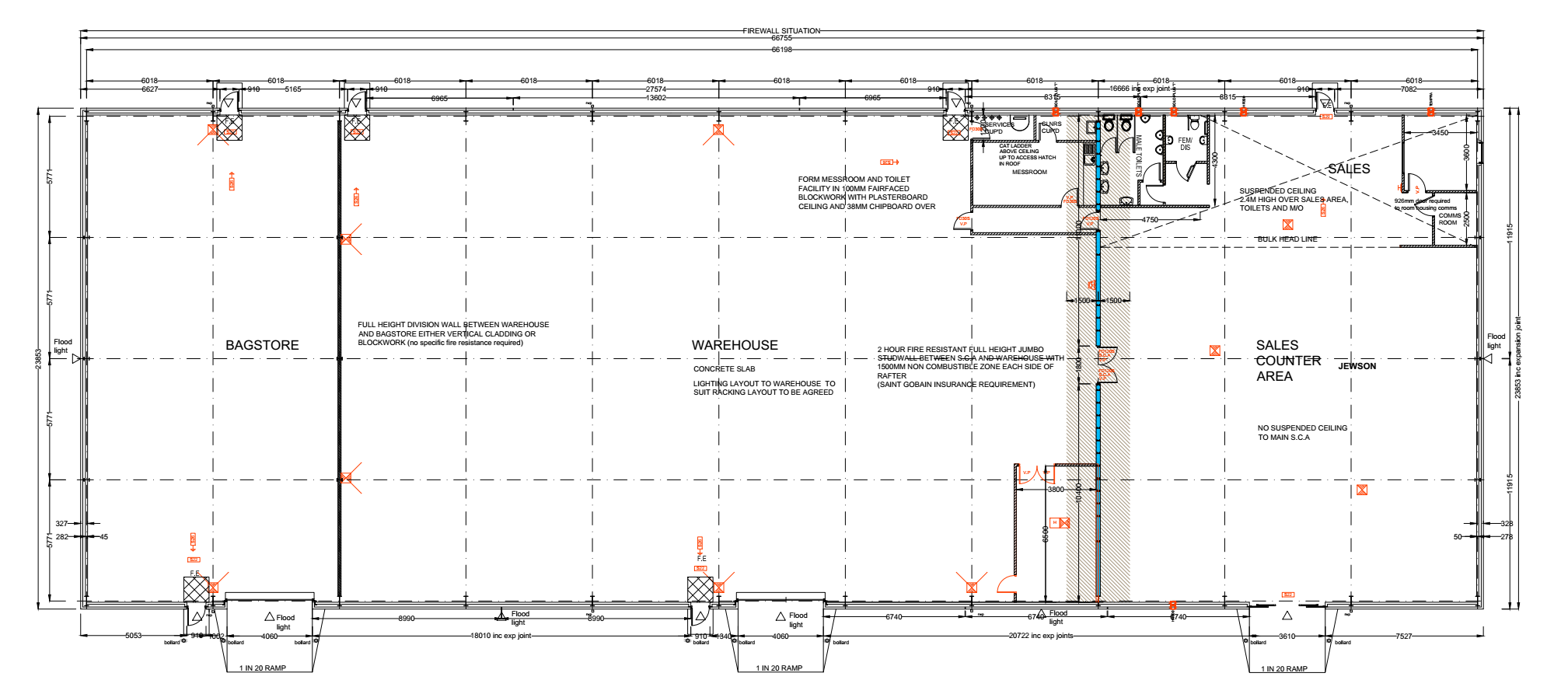
190228 Images from Board Presentation Drop In Jewson site redevelopment 60 residential units

Proposed redevelopment of the Jewson site to include a new Jewson building and yard with redevelopment and conservation of the remaining premises to provide up to 60 residential units with associated access and open space.

Extracts from the Board Presentation - also available as a flipbook from

This is mostly the images with a few text extracts below


 

Ecology [page 28]

A Preliminary Ecological Appraisal was carried out by Tamar Ecology in May 2018

It was found that:

The site does not lie within any designated wildlife areas but it borders the Hayle Estuary and
Carrack Gladden Site of Special Scientific Interest (SSSI} and is located within a SSSI Impact Risk
Zone. The SSSI is primarily designated for its wintering and migratory bird populations and part
is managed as a RSPB
Reserve.

Natural England has identifed that residential developments of above 10 units at this proximity to the
Hayle Estuary and Carrack Gladden SSSI could affect the designated area. It is possible that the scheme
could affect birds in Carnsew Pool adjacent to the site through increased lighting, noise and human
activity. Therefore Natural England and the RSPB will need to be consulted during the planning process
and may require mitigation to offset any potentially significant impacts.

The Jewson's site itself is of low ecological value, but has the potental to support legally protected
species including roosting bats and nesting birds in buildings, and reptiles around the margins of the
yard. Montbretia, a non-native invasive plant which requires legal control is present in the grassland.
The majority of the buildings were found to have limited potential for roosting bats but the Timber
Store had 'moderate' potential while Nesting birds were noted in several buildings.


 

The report made the following recommendatons:

Bat roost surveys were undertaken of the Timber Store which found that the building is used by low
numbers of common pipistrelle as a day roost and is likely to be used by low numbers of brown longeared bats as a night roost. Due to the species and numbers of bats recorded, the works will have a low impact on a bat roost.

Further surveys for nesting birds were not required for the planning application but building works
should take precautons to avoid disturbance.

The Appraisal outlines general measures to mitigate and compensate for ecological impacts; these
include:
• Keeping external lighting to a minimum to avoid disturbance bats and other wildlife;
• Providing compensatory habitats by installing bat and bird boxes and a log pile for reptiles.
• Incorporatng native trees and shrubs into the landscaping scheme and areas of species-rich wildflower
grassland.
• Eradicating invasive montbreta plants from the site prior to vegetation clearance to avoid them
spreading.

The development offers an opportunity to enhance the site for wildlife, in line with Natonal Planning
Policy Framework and Cornwall Council's biodiversity guidance. This report includes recommendations
for habitat enhancement including specific plantng for foraging bats and the provision of hedgehog
access holes in fencing and bee bricks in new buildings.
 


HERITAGE

Historic Environment

The historic townscape of Hayle is a key part of the COrnwall and West Devon Mining Lanscape World Heritage

 

...........

Page 41

Building Survey

Owen & Company undertook a survey on the current structural condition of the Former Timber Store. The building is 'L shape
in plan with the principal elevation facing Carnsew Road being a former boundary wall of approximately 500mm in thickness.
This has been raised historically to form the enclosed timber store in the early 20th Century with brick and stone piers inflled
with hit and miss brickwork to the underside of the current roof structure. The key findings are set out below.

SOUTH ELEVATION

The south elevation to the principal building faces Carnsew Road and forms a retaining structure at the lower yard level of
approximately lm in height. It has been raised externally in hit and miss brickwork laid on edge between brick and granite piers.
The brickwork has been lined internally with blockwork to the frst three panels and has been damaged to the seventh and eight
panel from western corner.
The nature of the wall is random and not coursed rubble which is explained by its original construction as a boundary
wall and there is minor dislocation of stonework to the top of the south west corner but again this appears to be
historic in nature.

WEST ELEVATION

The west elevation is similarly comprised of random stone bedded in lime mortar which was historically lime washed
but currently is free from decoration.
The boundary structure has also been raised during the early part of the 20th Century with brick infill panels between vertical
piers supporting the roof structure. These appear to have been replaced in the more recent past with brick on flat infll panels to
the front first four sections. It would appear that the original building and boundary structure extended some 10m from
Carnsew Road. The infill panels cease and there is evidence of a brick pier and quoin stones at that point which is not repeated
further down the elevation towards the northern corner.
There is evidence of an infill section of approximately 3m which would appear to be a former door or gate opening and it
would appear that stonework in the north western corner has been rebuilt historically.

 



EAST ELEVATON (southern leg of building)

The east elevation is comprised of a low solid block rendered retaining structure which has been built from the internal floor
level. Above there is a single glazed raised showroom window in a timber frame. The end of the original building has been
faced with modern brick quoins datng from the 1960s or early 1970s and it is evident that the building may have projected
beyond this line originally as there are no substantial granite quoining visible.
The construction of this elevation above floor level is comprised of an insubstantial timber frame with modern painted
corrugated steel sheeting. There is a plywood plant on section to the base of the sheeting to presumably conceal the scar
between the sheet and the rendered blockwork. The construction of the timber frame elevation appears relatvely poor and
should be removed as part of any future redevelopment work.
WEST ELEVATION (western wing of building)
The west is stonework which passes to roof level in unbroken fashion and possibly dates from different periods.
The elevaton is partially concealed by vegetation and the stonework is heavily stained by water runoff from the gutter.
The elevation leans slightly through its height and the general quality of stonework is poor with small bedding stones
and very large mortar joints.
EAST FACING ELEVATION (Northern Wing)
The east facing elevation of the northern wing comprises 4 granite piers which extend to the underside of the eaves and
support the roof beams across the openings, this wall originally continued past the current point and has been cut and made
good in sand and cement render where it abuts a more modern blockwork wall.
The granite piers have been faced in part in concrete possibly due to historic movement or to form protection from fork lif
trucks. The third pier from the northern corner appears to have a steel tie through it. Minor hairline cracking of the principal
stonework indicates some spreading and settlement of the structure at low level and galletng stones and bricks can be seen
to have been bedded into the joints over time.
There are 2 concrete block infill panels with rendered fnish between the principle piers and there is some outward
movement although this maybe due to impact damage historically from pallets. These will require removal as part of any
future redevelopment.
 
 
page 43
ROOF
The roof structure is comprised of principle rafters and ties which support sheetng rails, externally the roof is clad in asbestos
cement sheet. Bearing in mind the relatively slim nature of the structure, the current roof covering is either original or
replaced an earlier corrugated sheet roof. The structure dates from the early 20th Century. The roof timbers are suffering
from wet rot and minor deterioration where the current sheeting is split. The asbestos has omit
gotnumerous holes and
cracks and water penetraton is occurring in localised areas. The principal rafers and ties appear to be in serviceable
condition and do not appear to be suffering from visible rot. Generally, it is evident that the roof covering is now life expired
and water penetration is occurring to most of the sheeting rails. The roof structure was not designed to support a slate fnish
and will require substantal upgrading if the imposed load from roof fnishes are to be increased.
INTERNAL WALL STRUCTURES
Internal walls generally comprise the internal face of the boundaries to Carnsew Road and Harvey Quay, within the eastern
end of the building it is possible to see that the lower section below external paving level has been rendered and presumably
tanked but this does not extend beyond the frst sections of the building. To the western side of the Carnsew elevation it is
evident that brick piers have cracked possibly due to settlement of the structure or impact damage and localised
reconstruction of these piers will be needed. To the internal face of the western wall the masonry extension is in relatively
poor condition internally with
open joints and evidence of vertcal cracking to the north western corner. Internal walls are
comprised of blockwork modern constructon and these generally appear to be serviceable and vertical.
FLOORS
The floors throughout are of mass concrete of varying ages and in varying states of repair. They are generally satisfactory for
their current use however they do not beneft from damp proof membranes or tanking where beneath external ground
levels. These will need to be replaced during the course of any redevelopment work


 page 44/45
PLANNING POLICY
Cornwall Local Plan November 2016
 
 
page 47
• Supports conserving and enhancing the historic environment
The framework requires proposals to take account of the desirability of sustaining and enhancing the signifcance of heritage
assets and puttng them to viable uses consistent with their conservation; the positive contribution that conservation of
heritage assets can make to sustainable communities including their economic vitality; and the desirability of new
development making a positive contribution to local character and distinctiveness.
The Framework highlights that proposals that preserve those elements of the setting that make a positive contribution to or
better reveal the significance of the asset should be treated favourably
Hayle Neighbourhood Plan March 2018
Policy S01: Development within Built-up Areas
The Plan prioritises the redevelopment of brownfield sites and the principle of development within built-up areas such as the
Harbour is suoported.
Policy S02: Design and Layout of Residential Development
Sets out the criteria needed to be demonstrated in the design and layouts of residential development such as design, density,
open space and access.
Policy S04: Parking Provision for New Housing and other Developments
The policy seeks a minimum of 1 off street parking space for dwelling of 1-2 bedrooms and 2 off street parking spaces for
dwellings with 3 or more bedrooms
. In addition an additional off-street visitor parking space for every 4 dwellings for
proposals of 4 or more dwellings.
Policy NE3: Development in Keeping with its Landscape Settng
The scheme has been designed to be of good quality which respects the local character in terms of height, scale and bulk;
and reflect the identity of its surroundings.
Policy TR3: Trafc Impact
The location is easily accessible and safely reached by foot, cycle, public transport, other sustainable transport or car. The site
is accessed via Carnsew Road ensuring there is safe a suitable access in and round the site without impacting the road
network.
Policy HBl: Protection of Heritage Assets
The policy sets out that development within the setting of Heritage Assets need to understand their significance and we have
carried out a Historic Assessment of the site to ensure the development will have minimal impact.


 page 48/49
Policy Constraints
 
page 66 Preapplication
 
• The Historic Impact Assessment has to be proactive tool that is integral to informing the development proposals as they evolve.
How the proposals through scale, massing and spatial arrangements respect and do not dominate the relationship and readability of the site as a
component of the wider. The Harbour is an integrated engineering system and its open character and low-height buildings are key to its readability
and visual connections.
• Connections through the site and into the settlement of Hayle are crucial to it successful integration.
• The historic appearance, characteristics and use of the timber store and drying shed and its relationship with the open courtyard will need to be
carefully considered.
• A detailed assessment of remaining physical attributed (above and underground) will be required.
We accept this is a sensitive site within the World Heritage Site and therefore the development needs to demonstrate that it is sensitive to the
local context and contribute to protecting and enhancing all of the area's heritage assets. Advice and guidance will be enable the team to revise
the scheme. Benefts and improvements could include replacement of the roof; better access to the quay side; improved connectivity along the
waterside/quay edge; interpretation; high quality architecture; and an improved immediate settng through landscaping.
Open Space
The Council's strategy specifies quantities of six different essential types of open space, design requirements and minimum accessible distance
thresholds. A development of 52 units would require a combined total of 1777sqm, but some of the components would be too small to
be delivered on-site, without supplement.
The undeveloped area to the west would lend itself to some laying out for informal ballgames and general recreation. There is a significant
quantity of natural space locally, but its proximity & aspect to the Carnsew Pool area, would warrant introducing appropriate natural planting.
Based upon the design at present (assuming on-site 2000 sq.m) the shortfall in children's play would require an off-site contribution of
approximately £200 per dwelling (affordable & open market), towards play improvements at the Millpond.
Affordable Housing
The affordable housing team support the proposal to deliver up to 60 residential apartments of which 30% will be affordable housing. This is
because there is a high level of housing need in Hayle.
HomeChoice registered local housing need in the town of Hayle is currently 195 households. 66 households are currently registered with Help to
Buy South West looking for an affordable home to buy.
The Affordable Housing Team would normally seek the affordable homes to be aligned with the local housing need to include 70% affordable rent
and 30% shared ownership or discounted sale.
The scheme proposes 30% of the dwellings to be affordable, including shared ownership and affordable rental tenures in line with the
Affordable Housing team's recommendation.
Planning - Comments still to receive - Historic England have been consulted and we await their comments.

 Affordable Housing
 
 
 
zzzzz
 
aaa
Proposed redevelopment of the Jewson site to include a new Jewson building and yard with redevelopment and conservation of the remaining premises to provide up to 60 residential units with associated access and open space.
Figure3 Habitats
Historic Environment
Early 19th century engraving of Hayle. The pyramidal sherlegs over the dock can be seen in this illustration, just to right of centre of the picture
Copy of 1853 plan | Carnsew Docks
Copy of 1864 plan | Carnsew Docks
Traced copy of 1876 OS map | Carnsew Docks
Extract from OS 6 Inch map surveyed 1906 | Carnsew Docks
Extract from the 1936 OS 1:2500 map | Carnsew Docks
1930s view of the front of Carnsew Cottages
1930s view of the rear of Carnsew Cottages, showing their catslide roofs, dormers and wash-houses
Early 20th century photo of Carnsew Channel and dock, with the sawmill and chimney in the background
General aerial view of Hayle harbour,c1960
Air photo of Carnsew Quay, c1963
The unusual road limekiln on Carnsew Quay, early 1960s
Harveys showroom and street frontage on Carnsew Road
The aftermath of a major fire in Harveys showroom c1970
Existing Transport & Highways Conditions
Environment Constraints
Historic Constraints
Historic Constraints Listed Buildings
Jewson Redesign

Book page

TitleCreated
2026-EXTENDED-17th April 2026 to 22nd April- Resurfacing Steamers Hill; Hatchs Hill; Angarrack Lane | 1 Apr 07:30 - 17 Apr 23:59 3 weeks 4 days agoBook page
2026-April-POSTPONED-planned improvements i.e. install footpath, paint double yellow lines junction Grist Lane Hatchs Hill 4 weeks 1 day agoBook page
2026 - Resurfacing Steamers Hill; Hatchs Hill; Angarrack Lane | 1 Apr 07:30 - 17 Apr 23:59 5 weeks 5 days agoBook page
250330; Closure order:30 Mar-17 Apr 2026; 07:30-17:00; Clearway Parking Zone; Hatchs Hill, Steamers Hill and Angarrack Lane 7 weeks 19 hours agoBook page
Traffic/Roads - Marsh/Grist Lane - Traffic counts 2019 onwards 18 weeks 4 days agoBook page
Approved with conditions | PA25/07094 | First floor extension over existing garage to create Art studio with guest bedroom... 23 weeks 19 hours agoBook page
PA25/07094 | First floor extension over existing garage to create Art studio with guest bedroom, covered parking area below | As 23 weeks 6 days agoBook page
251027 | 20mph Monitoring—Hayle & St Ives Speed Data; Phase 3a-May-Jun 24 v Sep-Oct 24; Steamers Hill; Gwinear;Carbis;Nancledra 27 weeks 6 days agoBook page
PA25/07184 | Retention of 4no. existing holiday pods, swimming pool, incidental building, extended driveway and annexe converted 28 weeks 2 days agoBook page
251009 | Stark reality of life in Cornwall revealed through 2025 Vital Signs Report 30 weeks 3 days agoBook page
251010 | Cornwall backs 20mph rollout; St Austell's the only town to reject the plans 30 weeks 3 days agoBook page
250930 | Cornwall’s 20 mph speed limits have made the roads much safer 31 weeks 6 days agoBook page